Mieszkanie na sprzedaż Ustka, Kolorowa

5 pokoi
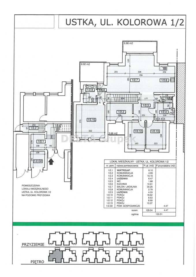
133.51 m²
7 857,09 zł/m2
1 piętro
DEL-MS-2400
Oblicz ratę kredytu

1 049 000 zł

Mieszkanie na sprzedaż

Szczegóły oferty

Symbol oferty DEL-MS-2400
Powierzchnia 133,51 m²
Powierzchnia użytkowa [m2] 129,04 m²
Liczba pokoi 5
Liczba sypialni 4
Rodzaj budynku bliźniak
Technologia budowlana beton, gazobeton
Standard
Opłaty wg liczników gaz
Piętro 1
Liczba pięter w budynku 2
Stan lokalu deweloperski
Okna PCV 3 szyby, ciepły montaż
Instalacje dobre
Rok budowy 2025
Widok na osiedle
Gaz jest
Woda ciepła - piecyk gazowy
Dojazd asfalt
Otoczenie pas nadmorski
Ogrzewanie C.O. GAZOWE
Usytuowanie dwustronne
piwnica tak, 4,47 m²
Pomieszczenia
Powierzchnia pokoi 30,25+18,62+8,53+8,99+10,37 m2
Typ kuchni jasna z oknem
Rodzaj kuchni aneks kuchenny - połączony z salonem
Powierzchnia kuchni 10,61 m2
Liczba łazienek 1
Powierzchnia łazienki [m2] 4,33 m2
Liczba WC 1
Powierzchnia WC 1,88 m2
Liczba przedpokoi 1
Powierzchnia przedpokoi 6,10 m2
Mirosław Chumek

Mirosław Chumek

licencjonowany pośrednik w obrocie nieruchomościami, numer licencji 1290, rzeczoznawca majątkowy
Nr licencji: 1290

Napisz wiadomość 4 Ofert

Opis nieruchomości

Nowocześnie zaaranżowany lokal mieszkalny w nowo wybudowanym budynku na osiedlu STOKOR VIP w Ustce. Osiedle STOKOR VIP apartamenty -  to przestrzeń pełna zieleni, to kompletna oferta komfortowych apartamentów powstających u zbiegu ulic Kolorowej i Polnej w Ustce. Klimatyczne miejsce sprzyja spędzaniu czasu z rodziną i przyjaciółmi. Osiedle jest odpowiedzią dla coraz bardziej wymagającego klienta, który czuje potrzebę znalezienia swojego idealnego miejsca do życia. To kameralna inwestycja apartamentowa, zaprojektowana z myślą o spełnianiu marzeń. 
Lokale sprzedawane są w stanie deweloperski z możliwością zlecenia wykończenia.
Atuty lokalizacji:
- przyjazna cisza i spokój,
- przestrzeń do aktywnego wypoczynku,
- każdy lokal ma swój ogród,
- bezproblemowy dostęp do komunikacji miejskiej, sklepów, szkół i przedszkoli oraz punktów usługowo–handlowych,
- droga dojazdowa do osiedla – wykonana z płytek typu polbruk,
- wejście do lokali- nawierzchnia z kostki granitowej.
Nowoczesne rozwiązania techniczne, to:
- dach skośny o konstrukcji drewnianej, kryty dachówką ceramiczną,
- ogrzewanie podłogowe gazowe z sieci miejskiej,
- markowe piece kondensacyjne dwufunkcyjne,
- okna PCV trzyszybowe rozwierane i uchylne,
- drzwi zewnętrzne aluminiowe,
- dodatkowe ujęcie wody do podlewania ogrodu,
- wysokiej jakości materiały budowlane.
Do każdego lokalu przynależą dwa miejsca postojowe.
UWAGA: W rozliczeniu możliwe mieszkanie w Ustce lub innym mieście.

Lokalizacja nieruchomości

Kalkulatory

Kalkulator kredytowy

Wysokość raty

PLN
%

Kalkulator kosztów

Taksa notarialna
(opłata notarialna)

Wniosek o wpis do KW

VAT od prowizji
agencji nieruchomości

VAT od taksy notarialnej
(opłaty notarialnej)

Prowizja agencji nieruchomości

Wypisy aktu notarialnego

Razem

Uwaga: mogą wystąpić dodatkowe opłaty za założenie księgi wieczystej oraz ustanowienie hipoteki.

PLN
PLN
PLN
PLN
PLN
%
PLN

Podobne oferty

Oferta specjalna

Mieszkanie na sprzedaż

Ustka

4 pokoje 105 m2 8 061,91 zł/m2
Oferta specjalna

licencjonowany pośrednik w obrocie nieruchomościami, numer licencji 1290, rzeczoznawca majątkowy

Proszę wprowadzić poprawne imię i nazwisko
Proszę wprowadzić poprawny numer telefonu
Proszę wprowadzić poprawny adres e-mail
Proszę zaznaczyć wymagane zgody
Rozwiąż równanie:
30 8
Niepoprawny wynik